Neubau-Bungalow und Doppelhäuser in Irchenrieth
Im Neubaugebiet Gleitsweg entsteht ein Bungalows mit Doppelgarage sowie zwei Doppelhäuser mit Carport
Key-facts Bungalow
Standort
Marderweg in Irchenrieth
Fertigstellung
Juli 2026
Bauweise
Ziegelmassivhaus "monolithisch" erbaut mit ca. 135 qm Wohnfläche
Energieeffizienz
Fußbodenheizung mit Wärmepumpe, PV-Anlage mit ca. 8,19 kwp
Offene und helle Räume
2,80 m Raumhöhe und große Fensterflächen. Bodentiefe Fenster mit 2,50 m Höhe.
Bäder
Bad en Suite mit großer bodengleicher Dusche und Badewanne sowie Gäste-Bad
Schlafzimmer
Insgesamt drei Schlafzimmer, Masterbedroom mit zwei begehbaren Kleiderschränken
Ausstattung
Parkettboden im Wohnbereich, Fliesen von Villeroy & Boch, Bad-Armaturen von Grohe
Beleuchtung
große Deckenspots in fast jedem Raum, auch in der Garage
Garage
Doppelgarage mit Sektionaltoren von Hörmann und direktem, barrierefreien Zugang zum Haus
Garten
Süd-Westgarten mit Rollrasen und Thuja-Hecke (aufpreispflichtig)
Terrasse
Süd-Terrasse mit ca. 22 qm und Alu-Terrassenüberdachung (elektrische Markise aufpreispflichtig)
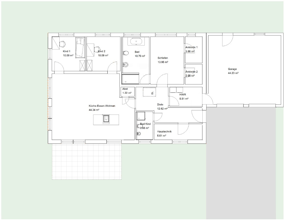
Dieser Neubau-Bungalow vereint zeitlose Architektur mit einem Wohnkonzept, das Großzügigkeit und Komfort auf höchstem Niveau bietet. Der Bau hat bereits begonnen, die Fertigstellung ist für Juni 2026 vorgesehen. Schon beim Betreten empfängt Sie ein stilvoller Eingangsbereich, der nahtlos in den weitläufigen Wohn- und Essbereich übergeht. Die offene Küche bildet das Herzstück des Hauses und lädt zu kulinarischen Genussmomenten und geselligem Beisammensein ein. Ein praktischer Abstellraum ergänzt diesen Bereich perfekt. Der Hauswirtschaftsraum bietet nicht nur Platz für Wäsche und Vorräte, sondern führt direkt in die angrenzende Doppelgarage – ein durchdachtes Detail, das Komfort und Alltagstauglichkeit vereint.
Der elegante Grundriss überzeugt mit einem großzügigen Raumangebot:
• Zwei helle Zimmer, flexibel nutzbar als Kinder-, Gäste- oder Arbeitsräume
• Ein luxuriöses Elternschlafzimmer mit zwei separaten Ankleiden und Bad en Suite – Privatsphäre und Exklusivität auf höchstem Niveau
• Ergänzt durch ein modernes Gäste-Bad, das Besuchern den gleichen Wohnkomfort bietet
Die nach Süden ausgerichtete, großzügige Terrasse mit einer Überdachung aus Aluminium und Echtglas wird zum erweiterten Wohnraum im Freien und lädt zu entspannten Sonnenstunden und lauen Sommerabenden ein.
Auch die Ausstattung unterstreicht den hohen Anspruch:
Edle Villeroy & Boch-Fliesen, hochwertiges Parkett im Wohnbereich sowie eine behagliche Fußbodenheizung schaffen ein Ambiente, das Eleganz und Wohnkomfort harmonisch verbindet. Beheizt wird das Haus mit einer modernen Wärmepumpenanlage, die für niedrige Betriebskosten sorgt und gleichzeitig höchsten Wert auf Nachhaltigkeit und Energieeffizienz legt. Im Rahmen der Bemusterung haben Sie zudem die Möglichkeit, Ihre persönlichen Vorstellungen einzubringen und Ihr neues Zuhause individuell zu gestalten.


















